Develops into a reliable, energy-efficient building – providing superior performance benefits to minimize energy costs, reduce carbon emissions, and maximize property value. Your new hangar is an innovative structure that offers superior strength, storm, sound, and fire resistance to protect your assets - keeping your aircraft and you covered.
- Accommodate large general aviation and multiple aircraft
- Corporate, Private, Commercial, and Business
- Fixed and rotary wing
- Concrete and steel building
- Interior ceiling height clear at 24’
- Priority leasing of float tie-down space on new docks at Lake Hood
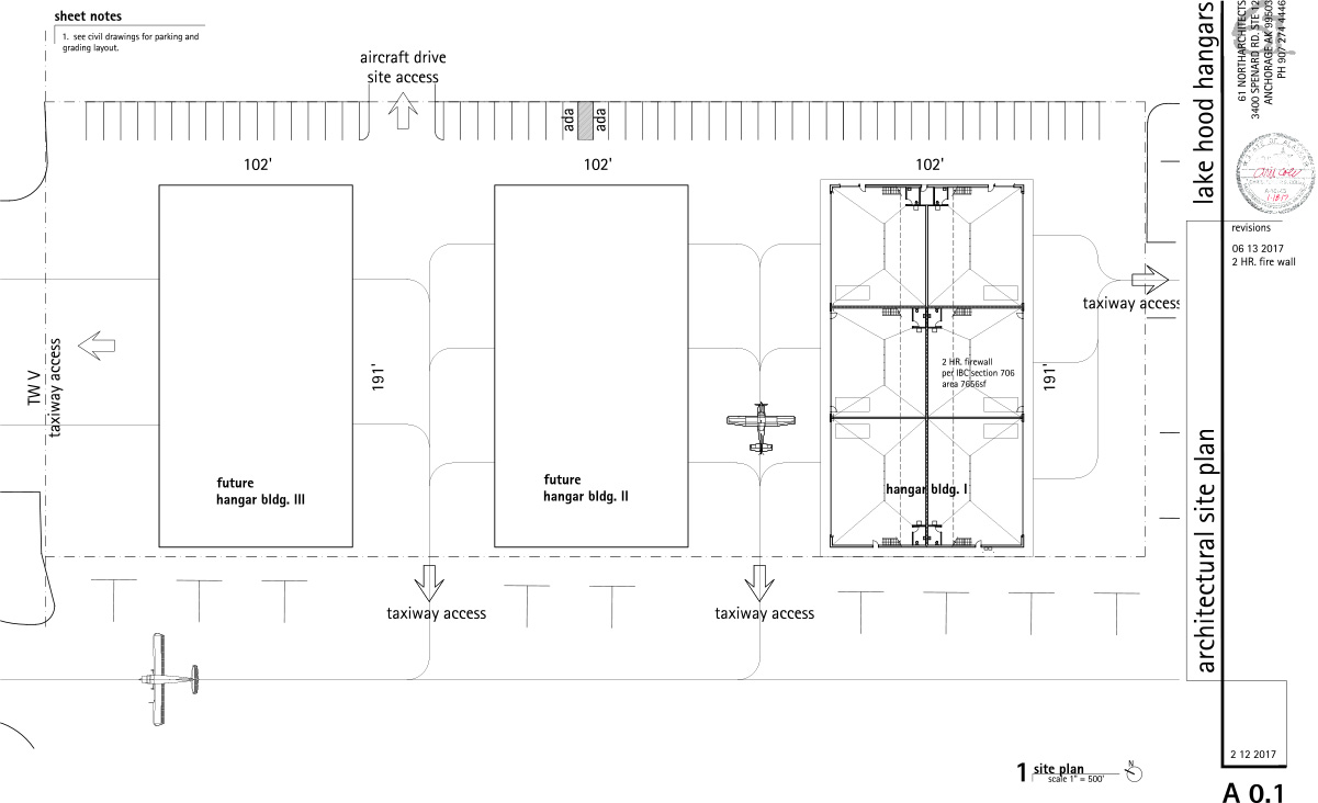
- 3,400 sf - 20,000 sf customizable spaces available
| Exterior Walls: |
13" insulated cast-in-place concrete & steel reinforced walls (ICF) with metal trusses  |
| Exterior Wall Height: |
27' to top of parapet
|
| Interior Wall Height: |
24' clear to bottom of girder trusses
|
| Roof: |
Duro-Last PVC Roof with 7" insulation on steel girder trusses with pan decking; on steel girder trusses; internal roof drains
|
| Windows: |
Thermal high efficient triple glazing. (hangar doors and exterior walls)
|
| Hangar Doors: |
55' 2", 57' 4", & 60' 5"-foot-wide X 20' 8" Hydraulic Doors with remote controlled opener
|
| Flooring: |
Radiant in-floor heat, with floor drains.
|
| Mechanical: |
96% high efficient gas-fired boilers and individual hot water heaters
|
| Electrical: |
Individually metered units, three phase 240/110V, LED lighting
|
| Mezzanine/Loft: |
Suspended from overhead girder trusses & internal bearing wall, 14'2" clear to underside
|
| Finishes: |
Demising walls are light gauge metal studs with insulation between hangars. All interior walls are gypsum wallboard, taped and painted. Finished restrooms with shower, floor drains in each Unit. Oil-water separator in each building.
|